Living room with wooden flooring, white walls, a bookshelf, a television, and framed art on the wall.

A02 I lakás

Helyszín
HU-Budapest

Tervezés ideje
2015

Bruttó szintterület
46 m2

Projektvezető építész
Csiha András

Felelős tervező
Alexa Zsolt

Generáltervező
Minusplus Generáltervező Kft.

Modern bedroom with white bed, wall-mounted reading lights, built-in bookshelves with books, and a view into the living area with hardwood flooring.
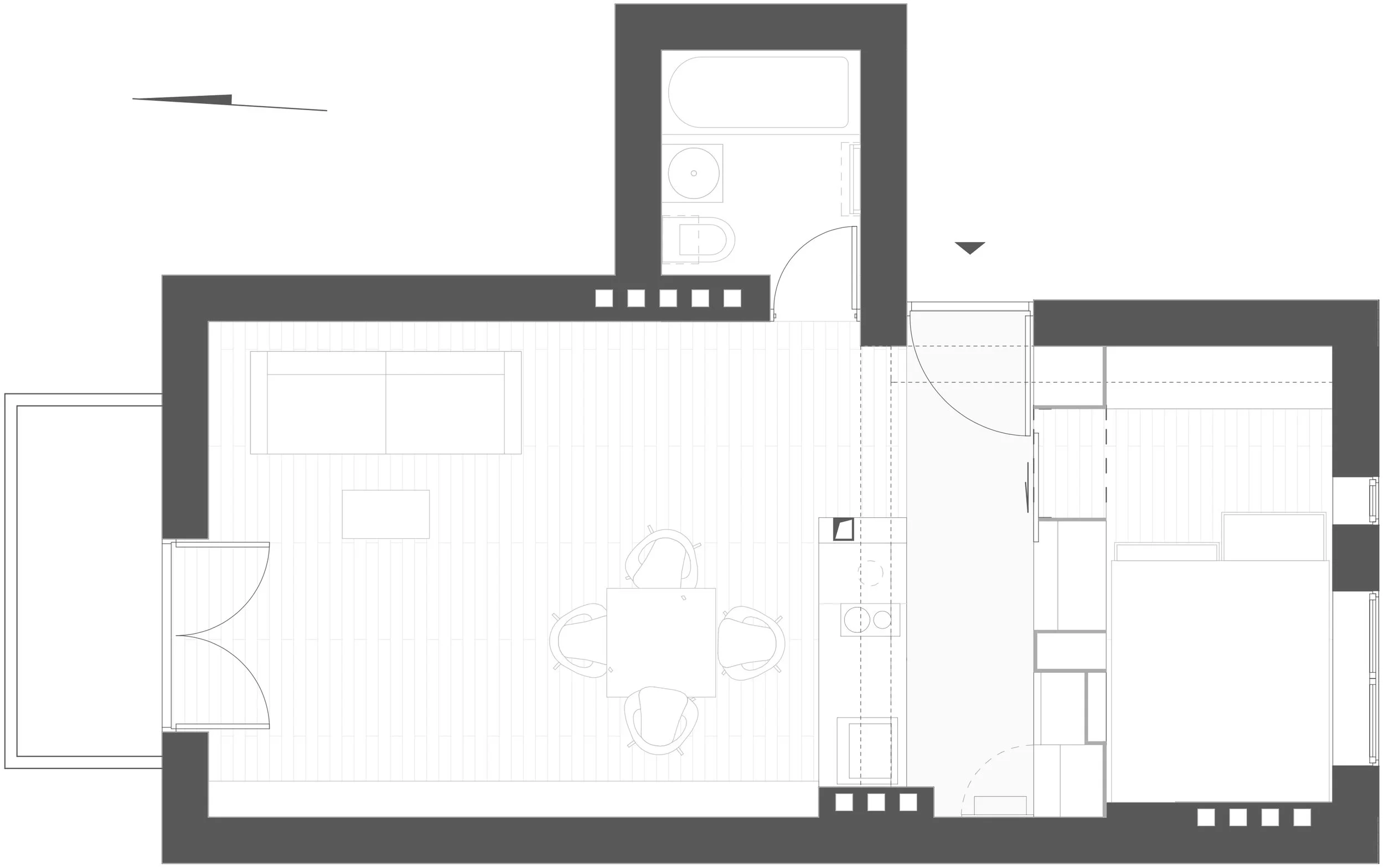
Architectural floor plan of a small apartment unit including a living room, kitchen, bedroom, and bathroom.

Egy budapesti stúdió lakás teljeskörű generáltervezése és belsőépítészete során minden apró részlet megtervezésre kerülhet. A cél egy kompakt, ugyanakkor téri élményeket biztosító lakótér létrehozása volt, mindenhol a megrendelői igények alapján történő súlyozás szerint.

A lakás fő térosztó eleme egy multifunkcionális bútorfal, mely markáns határvonalként osztja a privát és a közös tereket. Így jöhetett létre egy kuckós hálószoba, annak minden funkcionális igényével és egy jól működő konyha-étkező-nappali térsor a meglehetősen kompakt alapterületen.

Interior view of a modern apartment showing a small kitchen on the left with built-in appliances and a white countertop, and a dining area on the right with a table, green chairs, and shelving with books.
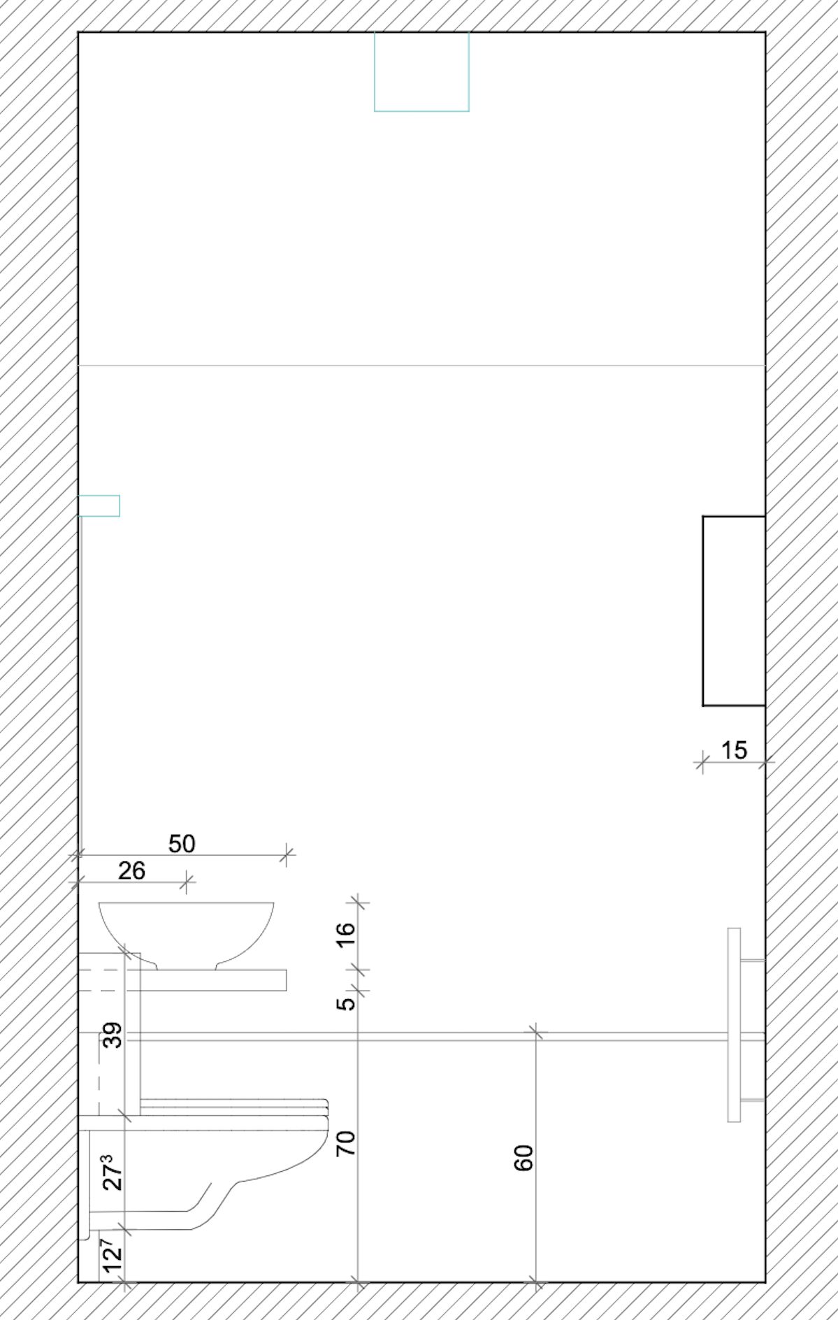
Architectural floor plan of a room with dimensions, fixtures, and wall features.
Modern minimalist white bathroom with brick-textured walls, a toilet, a small sink with a mirror, a bathtub with a wall-mounted faucet, and a wooden wall cabinet.
Minimalist bathroom with white brick walls, a toilet, a small sink with a yellow towel, a bathtub, and shelves with towels and bottles.