Modern office with yellow and blue walls, multiple workstations with monitors and laptops, green plants, large windows in the background, and a glass-enclosed meeting room to the right.

S27 I iroda

Bruttó szintterület
1260 m2

Tervezés ideje
2025

Helyszín
HU-Budapest

Építészet
Csiha András, Tóth-Varga Zoltán

Architectural floor plan of an office space with multiple rooms, open work areas, conference rooms, and outdoor seating areas.
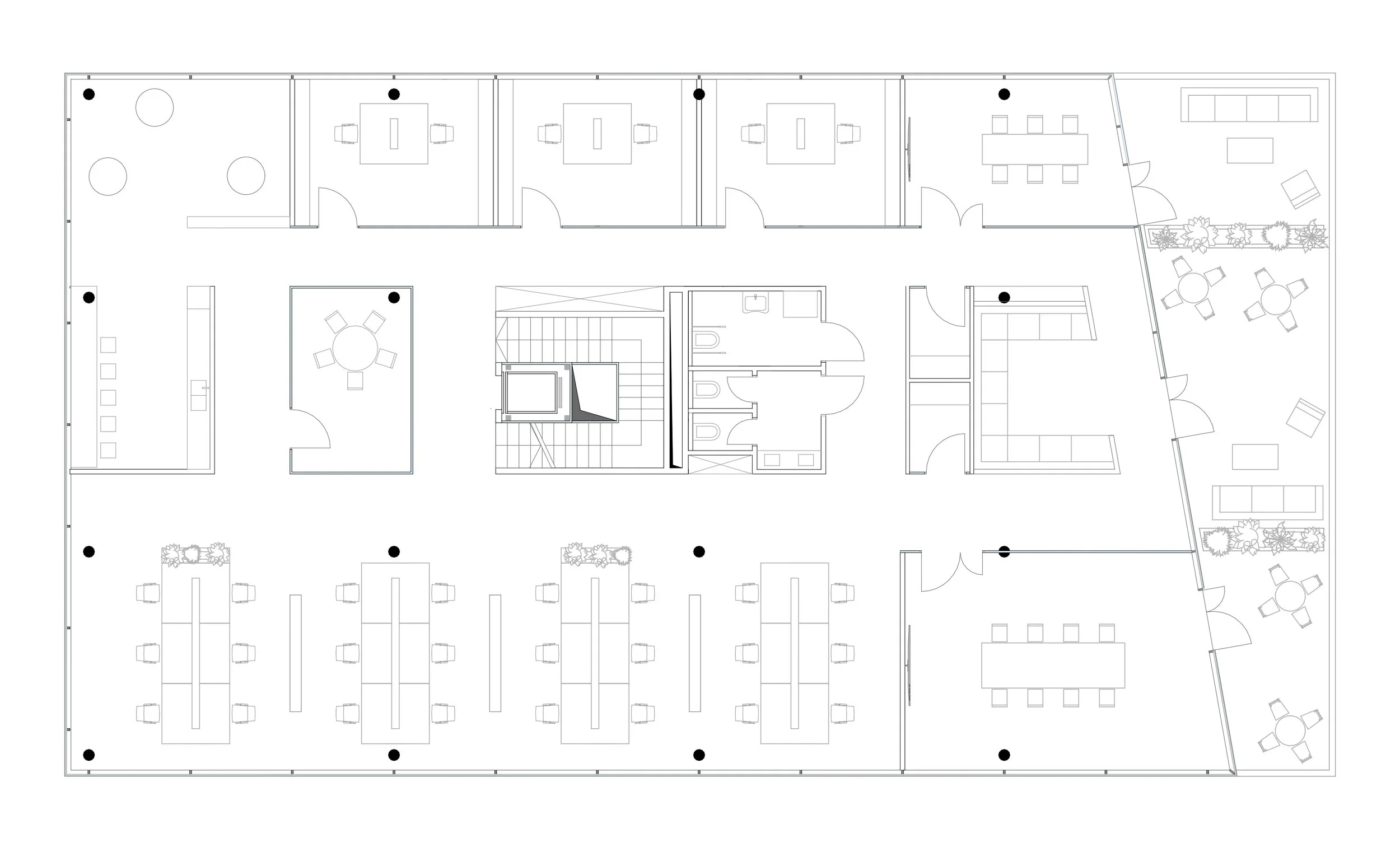
Floor plan of an office space with multiple rooms, open work areas, conference rooms, and restrooms, including stairwells and entrances.

Irodatér tervezése során kiemelten fontos számunkra, hogy a funkcionális és műszaki követelmények teljesítése mellett a brand vizuális megjelenését, az ügyfélélményt és a kollégák közötti harmonikus együttműködés feltételeit is biztosítsuk. Ennek a projektnek tervezésekor ezen szempontok együttes hatása különösen tetten érhető. A tér újragondolásának egyik különösen sarkalatos pontja manapság a funkcionális flexibilitás biztosítása volt.


A kiszolgáló és közlekedő területek egy központi mag köré szerveződnek, így a homlokzati sávban egy jól megvilágított, nyitott irodatér jöhetett létre. Ennek eredményeként különböző méretű és elhelyezkedésű irodák, tárgyalók és rekreációs zónák alakíthatók ki, a megrendelői igényekhez igazodva. A térszervezési koncepció részeként arra törekedtünk, hogy a munkaállomások, fókuszterek és közösségi terek aránya ideális egyensúlyt teremtsen a koncentrált munkavégzés és az együttműködés támogatása között.

A nagyobb tárgyalók a felső szinten kaptak helyet, közvetlen kapcsolatban a nyitott terasszal és a panorámával.

Az anyaghasználat és színpaletta kialakítása során a vállalati arculathoz igazodva egy barátságos, inspiráló és hatékony munkakörnyezet megteremtése volt a cél, ami egyszerre reprezentatív és harmonikus. A gondosan megválasztott belsőépítészeti elemek olyan atmoszférát teremtenek, amely támogatja a mindennapi munkavégzést és pozitív hatással van a használók jóllétére.

Modern open-plan office with multiple workstations, yellow and black chairs, large windows, and ceiling-mounted circular acoustic panels. Several employees are working or walking in the space.
Modern office reception area with white walls, green wall accent, light gray lounge chair, bookshelf with books and plants, and a yellow kitchenette with two people talking.